2020年湖南省长沙市中考历史试题

适用年级:九年级 试卷类型:中考真题 适用省份:湖南省 试卷年份:2020年 题数:16 浏览数:1623

一、选择题

1.

人们对历史的认识和研究离不开史料。下列选项对研究三国时期历史最为可信的是 (  )
        

A.三国吴简B.《三国演义》C.《资治通鉴》D.官渡之战战场遗址

2.

自古以来,在防治瘟疫方面中医有着独特的理论和实践,东汉末年时出现的一部将理论研究与临床实践相结合的医学著作是(  )

A.《伤寒杂病论》B.《齐民要术》C.《千金方》D.《本草纲目》

3.

观察下边的历史地图,结合所学知识,概括它所反映的时代特征(  )
湖南省长沙市2020年中考历史试题

A.政权分立与民族交融B.繁荣与开放的时代C.民族关系发展和社会变化D.统一多民族国家的巩固与发展

4.

和平建国的新阶段,即将开始,必须共同努力,以和平、民主、团结、统一为基础……长期合作,坚决避免内战,建设独立、自由和富强的新中国,彻底实行三民主义。 该材料发布于(  )

A.国民大革命时期B.国共十年对峙时期C.抗日战争胜利后D.解放战争胜利后

5.

全党、全军和全国各族人民同心同德,进一步发展安定团结的政治局面,并且立即动员起来,鼓足干劲,群策群力,为在本世纪内把我国建设成为社会主义的现代化强国而进行新的长征。 材料所表述的政治路线来自于(  )

A.遵义会议B.中共八大C.中共十一届三中全会D.中共十四大

6.

下面《与中国建交国家数量变化表》反映出(  )

时间

1949

1959

1969

1979

与中国建交国家数量

10

34

45

120

A.一国两制 构想成功实践B.对外开放格局逐渐形成C.一带一路 建设顺利实施D.中国国际地位不断提高

7.

一个拥有几个封臣的封君本人也许就是更高一等级封君的封臣,而更高一级封君又是一个更大关系网络中的封君手下的一名封臣。 下列选项与材料一致的是(  )

A.封建亲戚,以藩屏周 B.我的附庸的附庸不是我的附庸 C.中世纪教育 最美好的花朵 D.城市的空气使人自由

8.

陈衡哲在《西洋史》中提到,文艺复兴(Renaissance)的意义有两个:一是复生(re-birth),一是新生(new-birth),这两个意义是都不错的。该提法比较准确反映了(  )

A.文艺复兴的兴起与内容B.文艺复兴的原因与结果C.文艺复兴的形式与实质D.文艺复兴的内容与影响

9.

苏联(俄)一位领导人说: 我们在这方面犯了很多错误,走得太远了;我们在商业国有化和工业国有化方面,在禁止地方流转方面走得太远了。这是不是一种错误呢?当然是一种错误。 基于此,苏联(俄)实行(  )

A.战时共产主义政策B.新经济政策C.工业化和农业集体化D.苏联模式

10.

社会转型指人类历史上发生的结构性或根本性的社会变动,它是量变积累到一定程度所引发的超越原有社会模式的全方位、革命性的质变。下列选项属于 社会转型 的是(  )

A.彼得一世改革B.明治维新C.罗斯福新政D.赫鲁晓夫改革

11.

各缔约国同意对于欧洲或北美之一个或数个缔约国之武装攻击,应视为对缔约国全体之攻此等武装攻击及因此而采取之一切措施,均应立即呈报联合国安全理事会。 材料反映的是(  )

A.三国同盟与三国协约的建立B.世界反法西斯联盟的建立C.北大西洋公约组织的成立D.欧洲联盟的成立

12.

科学技术是认识自然和改造自然的强大武器,在历史上是种起推动作用的进步的革命力量。近现代科技成就中,被誉为中国 第五大发明 的是(  )

A.袁隆平成功培育出 籼型杂交水稻 B.陈国达创立 地洼学说
C.屠呦呦发现 青蒿素 D.国防科技大学成功研制出 银河 巨型计算机

二、材料题

13.

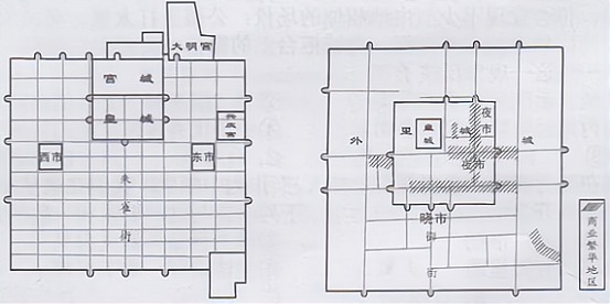
唐宋是中华文明史上的两座高峰。阅读材料,完成下列要求。
材料一 唐宋都城平面示意图
图一唐朝长安城                                             图二北宋东京城 
材料二 唐宋两个朝代的文化在许多方面是相接续的,宋代文化是唐代文化的延续和发展,是继唐代之后又一个文化高峰。唐代所建立的一系列制度,已经标志着行政管理体制的完善;宋代又在此基础上建立了更加完善的文官制度,皇帝和中枢大臣之间,中央和地方之间得以相互制衡,这个时期文明的发展趋势,可以概括为在整合中创新。

——摘编自袁行霈等主编《中华文明史》

请回答:
(1)比较图一和图二,从中提取唐朝长安和北宋东京在经济发展方面的不同信息。唐宋时期我国经济格局发生了怎样的变化?
(2)根据材料二并结合所学知识,概括唐宋文明是如何在 整合中创新 政治制度的?

14.

中国近代史是—部反抗外来侵略、救亡图存的抗争史,中华民族日渐觉醒,逐渐凝聚出强大的民族精神,并取得了反侵略斗争的完全胜利。阅读材料,完成下列要求。
材料一 近代列强发动的主要侵华战争和中国人民的反抗斗争
湖南省长沙市2020年中考历史试题
材料二 依中国社会的现状,宜有一个势力集中的党为国民革命运动之大本营,中国现有的党,只有国民党比较是一个国民革命的党,同时依社会各阶级的现状,很难另造一个比国民党更大更革命的党,即能造成,也有使国民革命势力不统一不集中的结果……工人阶级尚未强大起来,自然不能产生一个强大的共产党一个大群众的党,以应目前革命之需要。

——摘自《中共中央文件选集》

材料三 中华儿女不分民族、阶层、党派、宗教,也不分工、农、兵、学、商各行各业以至海外侨胞,都聚集在抗日民族统一战线旗帜下,汇成全民族抗战洪流,不仅是中华民族觉醒的集中表现,更是中华民族不可战胜的保证。

——摘自《人民日报》(2005年8月15日)

请回答:
(1)材料一中西方列强发动两次鸦片战争的根本原因是什么?旧民主主义革命时期,面对西方列强的侵略,中国人民的历次反抗斗争呈现怎样的共同特点?
(2)根据材料二并结合所学知识,分析共产党是如何促成 一个势力集中的党 出现的? 国民革命运动 取得怎样的成果?
(3)根据材料三并结合所学知识,归纳 全民族抗战洪流 有哪些具体表现?综上所述,你对 中国人民的反抗斗争 有何认识?

15.

阅读材料,完成下列要求。
材料一 我们的宪法没有照搬任何毗邻城邦的法律,相反的,我们的宪法却成为其他城邦模仿的范例。我们的制度之所以被称为民主制,是因为城邦是由大多数人而不是由极少数人加以管理的。我们看到,法律在解决私人争端的时候,为所有的人都提供了平等的公正……我们在政治生活中享有自由,我们的日常生活也是如此。

——摘自《伯里克利在牺牲战士葬礼上的讲话》

材料二 本宪法所授与之立法权,均属于由参议院与众议院组成之合众国国会……行政权属于美利坚合众国大总统;众国之司法权,属于最高法院及国会随时制定与设立之低级法院。

——摘自《美利坚合众国宪法》(1787年)

材料三 中华人民共和国是工人阶级领导的、以工农联盟为基础的人民民主国家。中华人民共和国的一切权力属于人民。人民行使权力的机关是全国人民代表大会和地方各级人民代表大会。全国人民代表大会、地方各级人民代表大会和其他国家机关,一律实行民主集中制。

——摘自《中华人民共和国宪法》(1954年)

请回答:
(1)材料一中 在政治生活中享有自由 大多数人 指哪些人?伯里克利所说的 民主 实质是什么?
(2)材料二中的宪法内容体现了什么政治思想?该宪法在保障人民权利方面有何局限性?为维护自身权益,工人阶级进行了持续斗争,二战后资本主义国家推行什么政策来缓和阶级矛盾?
(3)根据材料三并结合所学知识,为落实 一切权力属于人民 ,新中国在法制建设方面有哪些重要举措?

16.

探究题:中华文明源远流长,绵延不断,成就辉煌:湖湘文化是中华文明中独具地域特色的重要一脉。结合所学知识,完成下列要求。
【文明起源】
(1)我国迄今为止发现的最早城址是什么?以夏商周文明为主体的青铜文化呈现怎样的特征?
【文明传承】
(2)中华文明是世界四大古文明中唯从未中断过的文明。请结合所学历史知识,举一例说明 从未中断 的原因。近代湖南人起到了 开风气之先 的作用,在洋务运动期间他们作出了哪些重要贡献?
【文明发展】
(3)全球化趋势中,我们十分期待中华文明在未来的发展。请你对中华文明在未来的发展说说自己的看法。